31 Sandra LaneManitou Springs, CO 80829




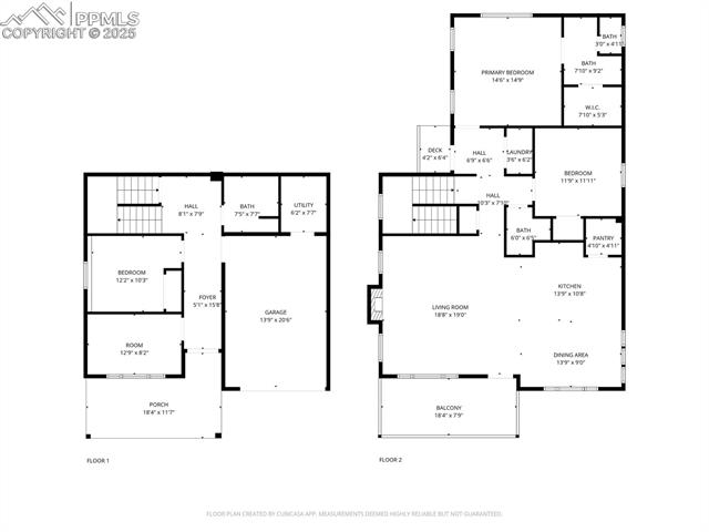
Discover this brand-new, custom-built, Mountain Modern-style home nestled in an established neighborhood known for its mature trees and scrub oak. This is a rare find—a newly constructed home offering the peace and space of a developed community with NO homeowner's association (HOA)! The spacious living room is anchored by a cozy gas fireplace, perfect for relaxing evenings. The home boasts custom touches throughout, including elegant white oak flooring, stairs, and windowsills. The gourmet kitchen is a chef's delight, featuring an eight-foot center island with lower cabinetry, a classic farmhouse sink, and stainless-steel appliances, including a dishwasher and vent hood. Attractive floating shelving and cabinet drawers flanking the gas range. A large walk-in pantry provides ample storage and includes an additional power supply for a microwave or other appliances. The expansive kitchen and dining area offer plenty of space for entertaining guests. Take in Pikes Peak and mountain views from the covered composite deck, framed by beautiful Douglas Fir accents. Outside, you'll appreciate the low-maintenance yard and a large driveway with ample parking leading to the oversized one-car garage. Enjoy the nearby walking and biking trails for easy outdoor access. The home includes a luxurious large primary suite that easily accommodates a king-sized bed. The accompanying bathroom features two separate vanities, a private toilet area, a large walk-in shower, and a substantial walk-in closet. A convenient office near the front door, complete with a large, bright window, is perfect for working from home. The lower level also includes a full bathroom with a shower. For modern convenience, the home is pre-wired with ethernet and cable and includes air conditioning. Don't miss this exceptional opportunity to own a unique, custom, and brand-new home in a sought-after, established location!
| 2 weeks ago | Listing updated with changes from the MLS® | |
| 2 weeks ago | Listing first seen on site |
The real estate listing information and related content displayed on this site is provided exclusively for consumers’ personal, non-commercial use and may not be used for any purpose other than to identify prospective properties consumers may be interested in purchasing. This information and related content is deemed reliable but is not guaranteed accurate by the Pikes Peak REALTOR® Services Corp. Copyright 2025
Last checked: 2025-11-23 04:25 AM UTC


Did you know? You can invite friends and family to your search. They can join your search, rate and discuss listings with you.